Aller au contenu principal

Petite surface, grands espaces

Paris (75)

Image
Légende

 

 

L’important pour les clients était de donner une sensation d’espace même si l’appartement est petit et tout en longueur avec une seule façade éclairée. Nous avons tout naturellement privilégié la solution grande pièce à vivre avec cuisine ouverte et intégrée dans une «niche» dans le prolongement des placards. Afin de dégager un maximum de surface et de créer une sensation d’espace dans ce petit appartement, tout le mur Est a été pensé comme un mur de «service» intégrant la cuisine qui y est déplacée et intégrée comme une alcôve colorée. Le mur se poursuit par un ensemble de placards et rangements permettant de libérer tout l’espace pour y circuler.

Image
Légende

 

 

La cuisine et les placards sont réalisés à partir de caissons ikea et d’éléments fabriqués en medium, les portes sont faites par le menuisier en medium laqué. Le plan de travail en agglo hydrofuge revêtu d’un mortier auto-lissant donne un aspect minéral au plan de travail. Le petit fenestron existant dans la cuisine apporte une pointe de lumière nécessaire et que l’on retrouve dans l’entrée grâce à la baie vitrée fixe qui sépare la sépare de la cuisine.

Image
Légende

Seules les poutres principales ont été conservées, nettoyées, dégagées.

Image
Légende

Dans la chambre, les solives ont été conservées elles-aussi, afin d'animer le volume de ce petit espace.

Image
Légende

Dans le salon: étagère / cloison conçue pour l’appartement, réalisée en medium.

Image
Légende

Enduits ciment teinté étanches dans la salle de bains sol / murs / meuble.

Image
Légende

Le mur de placard et l’étagère / cloison permettent de tout ranger pour dégager l’espace de vie.

Image
Légende

En chantier

Image
Légende

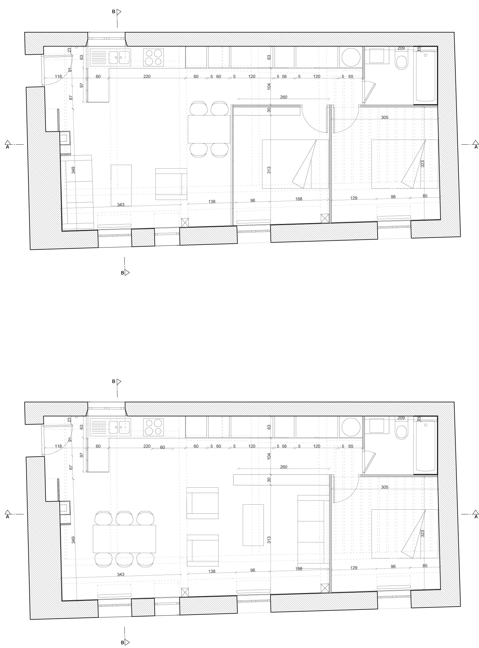
Plans version T2 en haut, T3 en bas

Localisation : paris (75)
Équipe : Hélène Reinhard avec Maud Revol Bordone
Maîtrise d'ouvrage : privée
Budget travaux : 40 000 € ht
Surface : 50 m²
Mission : maîtrise d'oeuvre complète
Crédits photos : clément guillaume
Année : livré en 2012

L’important pour les clients était de donner une sensation d’espace même si l’appartement est petit et tout en longueur avec une seule façade éclairée. Nous avons tout naturellement privilégié la solution grande pièce à vivre avec cuisine ouverte et intégrée dans une «niche» dans le prolongement des placards. Afin de dégager un maximum de surface et de créer une sensation d’espace dans ce petit appartement, tout le mur Est a été pensé comme un mur de «service» intégrant la cuisine qui y est déplacée et intégrée comme une alcôve colorée. Le mur se poursuit par un ensemble de placards et rangements permettant de libérer tout l’espace pour y circuler.

Petite surface, grands espaces

Paris (75)

Image
Légende

 

 

L’important pour les clients était de donner une sensation d’espace même si l’appartement est petit et tout en longueur avec une seule façade éclairée. Nous avons tout naturellement privilégié la solution grande pièce à vivre avec cuisine ouverte et intégrée dans une «niche» dans le prolongement des placards. Afin de dégager un maximum de surface et de créer une sensation d’espace dans ce petit appartement, tout le mur Est a été pensé comme un mur de «service» intégrant la cuisine qui y est déplacée et intégrée comme une alcôve colorée. Le mur se poursuit par un ensemble de placards et rangements permettant de libérer tout l’espace pour y circuler.

Image
Légende

 

 

La cuisine et les placards sont réalisés à partir de caissons ikea et d’éléments fabriqués en medium, les portes sont faites par le menuisier en medium laqué. Le plan de travail en agglo hydrofuge revêtu d’un mortier auto-lissant donne un aspect minéral au plan de travail. Le petit fenestron existant dans la cuisine apporte une pointe de lumière nécessaire et que l’on retrouve dans l’entrée grâce à la baie vitrée fixe qui sépare la sépare de la cuisine.

Image
Légende

Seules les poutres principales ont été conservées, nettoyées, dégagées.

Image
Légende

Dans la chambre, les solives ont été conservées elles-aussi, afin d'animer le volume de ce petit espace.

Image
Légende

Dans le salon: étagère / cloison conçue pour l’appartement, réalisée en medium.

Image
Légende

Enduits ciment teinté étanches dans la salle de bains sol / murs / meuble.

Image
Légende

Le mur de placard et l’étagère / cloison permettent de tout ranger pour dégager l’espace de vie.

Image
Légende

En chantier

Image
Légende

Plans version T2 en haut, T3 en bas

Localisation : paris (75)
Équipe : Hélène Reinhard avec Maud Revol Bordone
Maîtrise d'ouvrage : privée
Budget travaux : 40 000 € ht
Surface : 50 m²
Mission : maîtrise d'oeuvre complète
Crédits photos : clément guillaume
Année : livré en 2012

L’important pour les clients était de donner une sensation d’espace même si l’appartement est petit et tout en longueur avec une seule façade éclairée. Nous avons tout naturellement privilégié la solution grande pièce à vivre avec cuisine ouverte et intégrée dans une «niche» dans le prolongement des placards. Afin de dégager un maximum de surface et de créer une sensation d’espace dans ce petit appartement, tout le mur Est a été pensé comme un mur de «service» intégrant la cuisine qui y est déplacée et intégrée comme une alcôve colorée. Le mur se poursuit par un ensemble de placards et rangements permettant de libérer tout l’espace pour y circuler.